Damgate, Holbeach, Lincolnshire

Putters Place, Damgate, Holbeach, PE12

4 bedroom Detached house for sale

£350,000

  • 4
  • 2
  • 2

Key Features

  • 4 BEDROOMS
  • DETACHED HOME
  • ENSUITE
  • KITCHEN / BREAKFAST ROOM
  • UTILITY ROOM
  • EV CHARGING POINT
  • SOLAR PANELS
  • SINGLE GARAGE
  • LARGE REAR GARDEN

Description

*** PLOT 1 – THE KINGSTON *** STAMP DUTY PAID ON SELECTIVE PLOTS ***

A stunning 4-bedroom detached family home with an extensive rear garden, located in the beautiful new Damgate, Holbeach development. Each home has been thoughtfully designed with high-quality finishes and modern features, including: • Electric car charging points • Outdoor taps and lighting • Waste water heat recovery systems • Photovoltaic (PV) solar panels Buyers can enjoy a choice of kitchen styles (with fully integrated A-rated appliances) and a full flooring package – ready to move into on completion. Combining modern architecture, energy efficiency, and spacious interiors, Damgate, Holbeach offers the perfect balance of peaceful rural living with easy access to local amenities, schools, and transport links. ✨ Plot 1 – The Kingston: Where modern living meets timeless comfort. ✨ #NewHomes #Holbeach #PropertyForSale #SustainableLiving #FamilyHome


Location


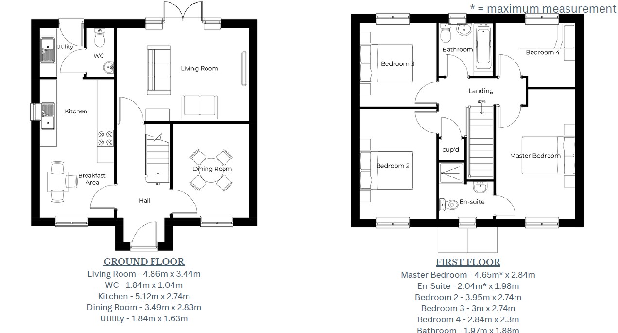
Floorplan

Floorplan

Similar Properties

Damgate, Holbeach, Lincolnshire
For Sale

Putters Place, Damgate, Holbeach, PE12

4 Bed Detached house For Sale
From £350,000
Hear about the latest properties first by joining our mailing list