Cardea, Peterborough, Cambridgeshire

Hercules Way, Cardea, Peterborough, PE2

2 bedroom Coach House for sale

£180,000

  • 2
  • 2
  • 1

Key Features

  • 2 BEDROOM COACH HOUSE
  • GARAGE
  • NO ONWARD CHAIN
  • GARAGAE AND PARKING SPACE
  • COUNCIL TAX BAND - B / EPC RATING - C
  • Council Tax Band: B

Description

*** NO ONWARD CHAIN *** '' Well presented throughout, this 2 bedroom coach house currently has a tenant in situ paying £925 PCM. There is a garage and parking space outside of the property. Inside, you will find an entrance space with stairs to 1st floor, a spacious living area, kitchen, 2 bedrooms with an en-suite to bedroom one and an additional bathroom. Council Tax Band - B / EPC Energy Rating - C ''

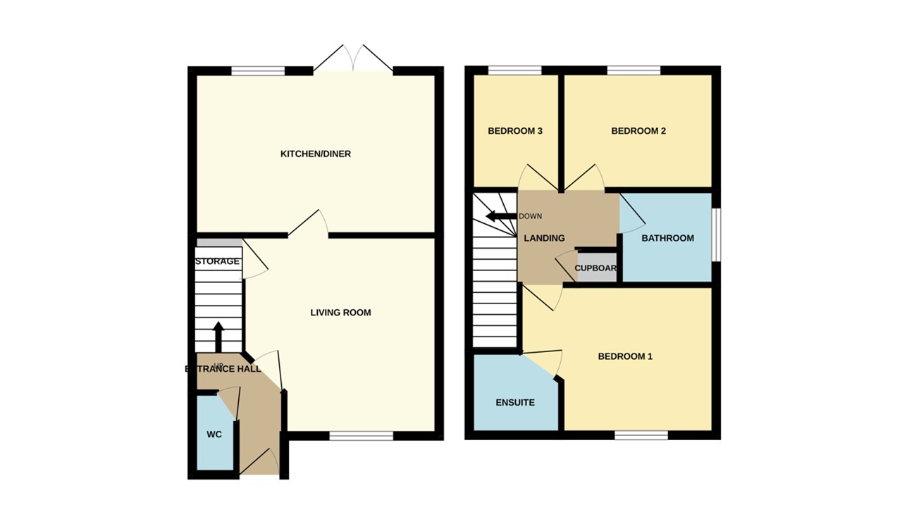
Entrance

Door to front and stairs to first floor.

Landing

Window to rear, radiator and cupboard.

Living Room

11' 0" (min) (3.35m) 14' 3" (max) x 17' 2" (4.34m x 5.23m) (approx) UVPC window to front and radiator.

Kitchen

10' 7" x 8' 3" (3.23m x 2.51m) (approx) Fitted with a range of base and eye level units with work surfaces over, 4 ring gas hob and oven, sink with mixer tap, space for undercounter fridge, space for undercounter freezer and space for undercounter washing machine. Window to rear.

Bedroom One

12' 6" x 10' 0" (3.81m x 3.05m) (approx) UVPC window to rear and radiator.

En-suite

6' 7" x 6' 9" (2.01m x 2.06m) (approx) Fitted with a three piece suite comprising low level W/C, wash hand basin and shower cubicle. Window to rear and radiator.

Bedroom Two

5' 6" (min) (1.68m) 8' 8" (max) x 10' 6" (max) (2.64m x 3.20m) 6' 8" (min) (2.03m) (approx) Window to front and radiator.

Bathroom

6' 9" x 6' 7" (2.06m x 2.01m) (approx) Fitted with a three piece suite comprising low level W/C, wash hand basin and bath. Window to rear and radiator.

Garage

Agent Notes

The floorplan is for illustrative purposes only. Fixtures and fittings do not represent the current state of the property. Not to scale and is meant as a guide only.


Location


Floorplan

Floorplan

EPC

EPC for Cardea, Peterborough, Cambridgeshire

Similar Properties

Silver Street, Peterborough, Cambridgeshire
SOLD STC

Silver Street, Peterborough, PE2

3 Bed Terraced House SOLD STC
£185,000
Orton Goldhay, Peterborough, Cambridgeshire
For Sale

Bringhurst, Orton Goldhay, Peterborough, PE2

2 Bed Semi-detached bungalow For Sale
Offers in excess of £175,000
Hear about the latest properties first by joining our mailing list