West Pinchbeck, Spalding, Lincolnshire

Six House Bank, West Pinchbeck, Spalding, PE11

3 bedroom Plot for sale

£75,000

  • 3
  • 1
  • 1

Key Features

  • Building Plot
  • Outline Planning Approved
  • Planning Reference H14-0729-20
  • Detached House
  • Three Bedrooms
  • Off Road Parking
  • Open Views To Front & Rear
  • Tenure: Freehold

Description

***BUILDING PLOT WITH OUTLINE PLANNING PERMISSION***

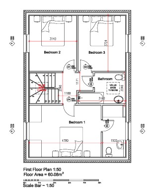
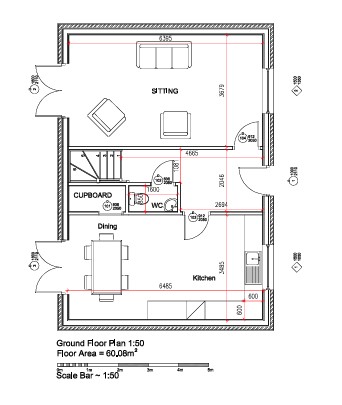
Outline planning permission has been granted by South Holland District Council for a three bedroom detached dwelling. The plot is located on Six House Bank and enjoys open views to both the front and rear. The approved outline design comprises: First Floor Three bedrooms Master bedroom with en-suite Family bathroom Ground Floor Lounge Kitchen/diner Downstairs cloakroom The property will benefit from off-road parking to the front and side. An excellent opportunity for self-builders or developers to create a family home in an attractive setting.

PRIME BUILDING PLOT WITH OUTLINE PLANNING PERMISSION

An excellent opportunity to acquire a building plot with outline planning permission for a three bedroom detached family home, approved by South Holland District Council.

Situated on Six House Bank, the plot enjoys open countryside views to both the front and rear, offering a desirable balance of rural outlooks with convenient access to local amenities.

The approved outline scheme proposes:

First Floor

Three bedrooms

Master bedroom with en-suite

Family bathroom

Ground Floor

Lounge

Kitchen/diner

Downstairs cloakroom

The proposed dwelling also benefits from off-road parking to the front and side.

This plot represents an ideal self-build or development opportunity, allowing purchasers to design and complete a modern family home in an attractive and sought-after location (subject to reserved matters).


Location


Floorplan

Floorplan Floorplan
Hear about the latest properties first by joining our mailing list